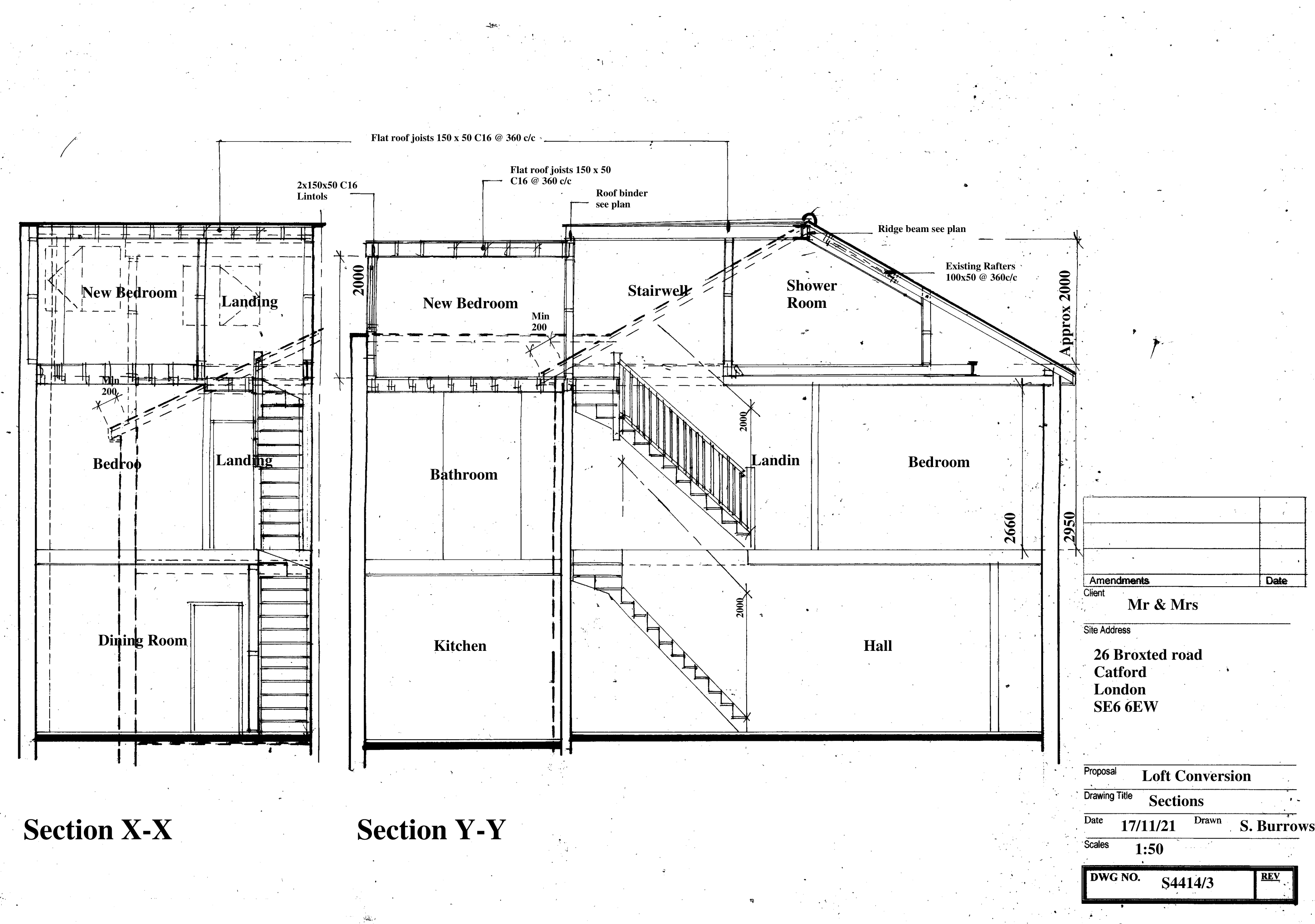
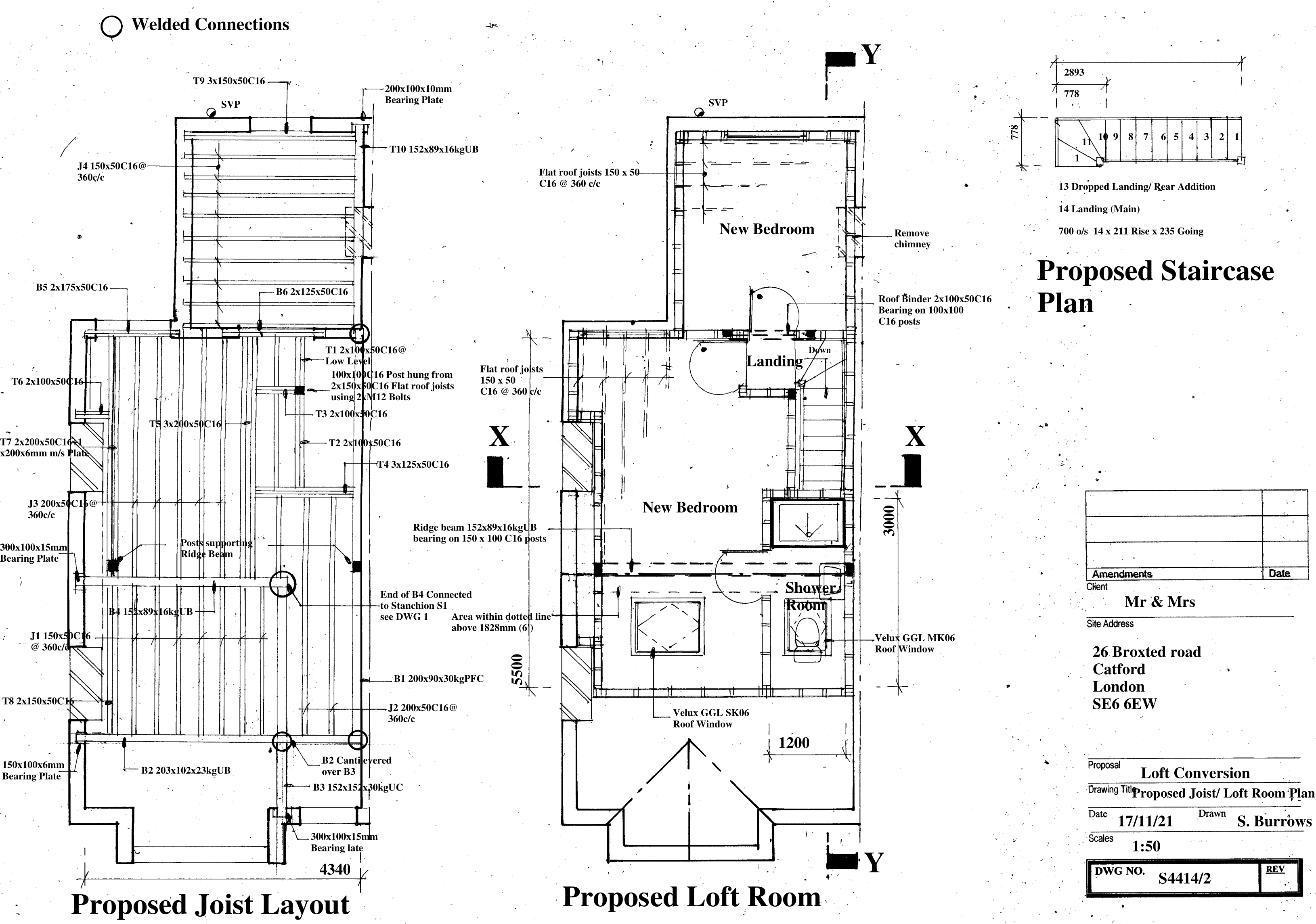
L-Shaped Loft Conversions in South London & Kent

Typically suited to Victorian and Edwardian properties with an addition to the rear. 

The addition of a dormer provides a significant amount of additional space that compliments the original structure of the property.

Find Out More About L-Shaped Loft Conversions

All CS Lofts projects are designed by our in-house architect.

At the start of the project our architect surveys your home to identify the maximum amount of additional space that can be achieve.

We then listen to your ambitions for the space and put together a design tailored to meet your precise needs. Reach out today for a free quote on a L-Shaped Loft Conversion.